Start av flera nya detaljplaner på nya byggnadsnämnden
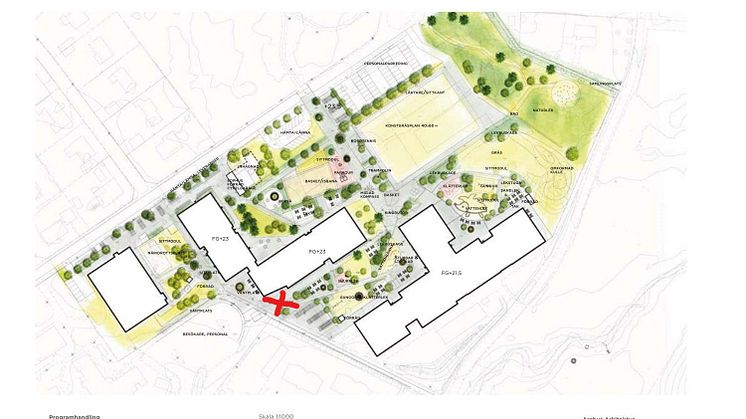
På nya byggnadsnämnden väntas beslut om planuppdrag för nya bostäder på Slottsträdgården 2 i centrala Västerås samt ny mottagningsstation för el på Finnslätten.
På nya byggnadsnämnden väntas beslut om planuppdrag för nya bostäder på Slottsträdgården 2 i centrala Västerås samt ny mottagningsstation för el på Finnslätten.
I Västerås samverkar Västerås stadsarkiv, Arkiv Västmanland, Regionarkivet, länsmuseet, Västerås stadsbibliotek, Vallby friluftsmuseum samt Västerås släktforskarklubb om Arkivens dag som i år genomförs i Västerås stadshus (ingång från Fiskartorget), lördagen den 12 november klockan 11–15.
Denna vecka besöker Gaborone stad, Botswana Nybyggeskolan i Västerås för att diskutera hur vi tillsammans kan bli mer hållbara. Besöket är ett led i ett samarbetsprojekt mellan Gaborone stad, Västerås stad och VafabMiljö. På torsdagen sker ett verksamhetsbesök på Nybyggeskolan dit även lokalmedia är välkomna för att ställa frågor till projektdeltagare och personal.
Arbetstagare på Västerås stads Daglig verksamhet inom LSS genomför ett stort arbete av praktiska arbetsuppgifter inför och efter valdagen. I nära samarbete med stadens valsamordnare ser arbetstagarna till att vallokalerna har allt material som behövs inför och under valet. Arbetet genomförs för fjärde valet i rad och skapar stolthet, delaktighet och teamkänsla hos arbetstagarna.
Pontus Nilsson,
Vid tisdagens sammanträde beslutade nämnden för idrott, fritid och förebyggande, att ge Vedbobackens ekonomiska förening uppdraget att sköta driften av Västerås stads alpinanläggning Vedbobacken de kommande fem åren, med option på 3+3+3 år.
På torsdagens möte väntas byggnadsnämnden bland annat besluta om att anta två detaljplaner för att bygga nya skolor i Västerås. Det handlar om en ny skola på Fridnäs och en på Norra Vallby.
Söndagen den 28 augusti klockan 10-16 är det dags igen att fira arkeologidagen på Anundshög. Upplev järnålder och medeltid under en dag fylld med kostnadsfria aktiviteter för hela familjen, som lilla arkeologiskolan, vikingatida lekar, familjeaktiviteter vid runstenen, uppvisning av textilhantverk från järnåldern. Det blir också traditionsenlig stridsuppvisning med vikingar.
Invigning av Irstaskolans nya lokaler den 15 augusti klockan 13.00 med möjlighet till rundvandring. Välkommen!
EUROPA DIREKT Västerås är västeråsarnas kanal till EU. I år träffar vi tillsammans med våra åtta feriepraktikanter västeråsarna på stan och på Västerås EU-badplatser: Lögastrand, Gäddeholms badplats och Björnöbadet. Vi kommer förutom att fråga västeråsarna vad de tycker om EU även aktivera västeråsarna med pilkastning och vattenballonger.
Igår måndag var vi på Gäddeholms badplats, idag tisdag
Från och med den 1 juli 2022 kommer en ny lagstiftning att träda i kraft. Den innebär att Migrationsverket lämnar över uppdraget till kommunen att ordna boenden till personer med uppehållstillstånd enligt massflyktsdirektivet. Det står nu klart att det nedlagda servicehuset på Prästkragegatan, Gideonsberg, blir det första boendet som görs om till lägenheter för flyktingar från Ukraina.
Nu släpper vi en ljudvandring på en av västeråsarnas mest omtyckta platser. I ljudvandringen "Djäkneberget - en oas som ruvar på många historier" vill vi ge västeråsarna berättelserna om berget som rymmer allt från fest till vardag. Välkommen på pressträff då du kan träffa många av oss som medverkar i ljudvandringen. Ljudvandringen lanseras i appen Västeråsguide onsdag 22/6 2022.
Arkitekturprogram för Västerås ska skickas ut på remiss. Här beskrivs bland annat hur Västerås stad ska bevara och utveckla arkitekturen och goda livsmiljöer i kommunen. Remisstiden är till och med sista september. På torsdagens möte väntas byggnadsnämnden också besluta om att anta en detaljplan (dp 1918) som beskriver hur ett nytt verksamhetsområde vid Anundshögsmotet kan utvecklas.